Valentin Recoquillon Négociateur
Télécharger la fiche

Maison 5 pièce(s) 3 chambre(s) 85 m²

Montaigu-Vendée (85600)
267 500 € Référence APTPALOU3

A propos de ce bien

En exclusivité chez ATP Immobilier, découvrez cette maison neuve (livraison fin 2026) de type T4, à étage, offrant 85 m² habitables, pensée pour un quotidien confortable et moderne.

Au rez-de-chaussée, la pièce de vie de 33 m² s’impose comme le véritable cœur de la maison : un espace ouvert, lumineux et convivial, idéal pour la vie de famille puis une grande chambre.

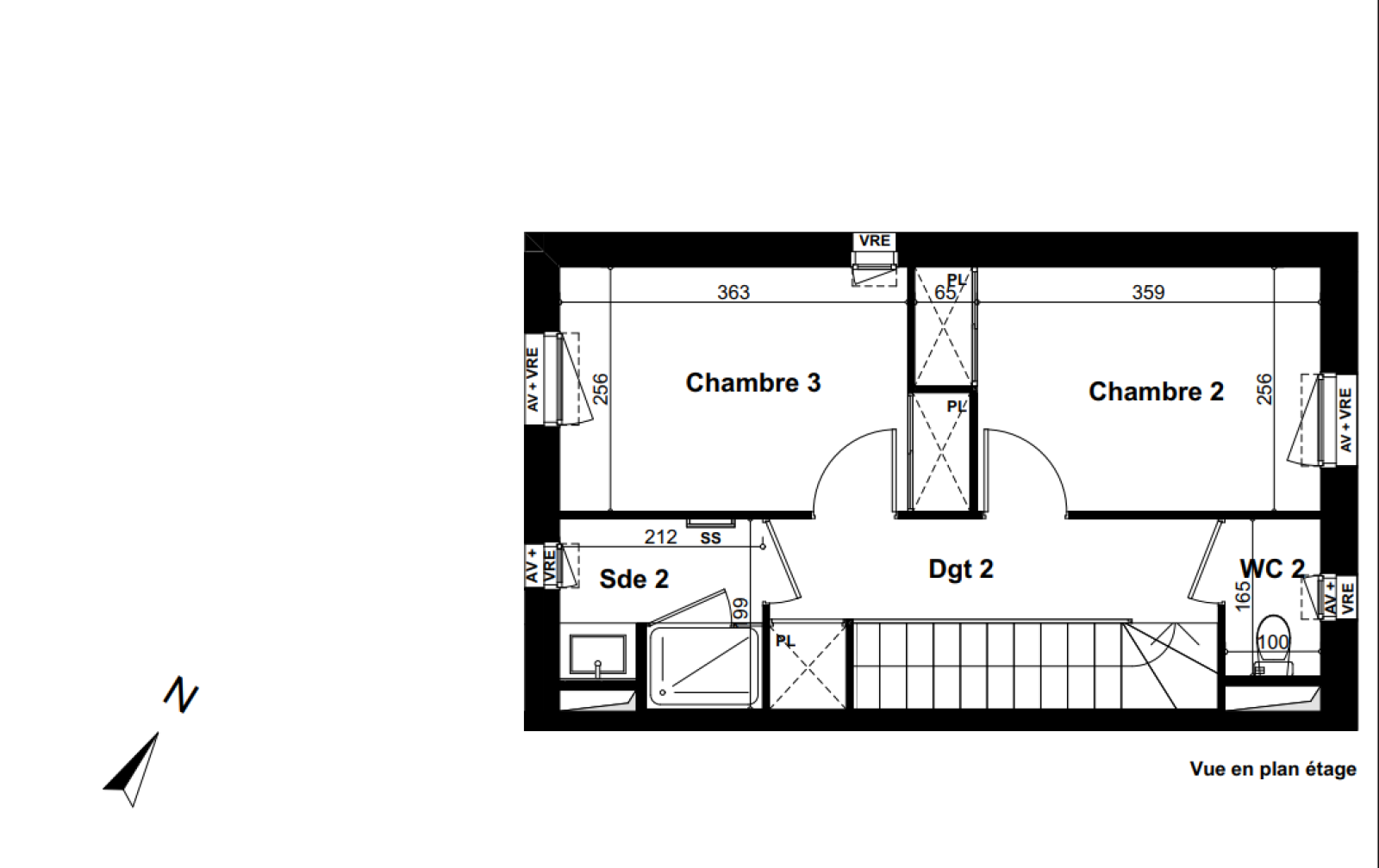
À l’étage, l’espace nuit se compose de deux chambres aux surfaces équilibrées, allant de 10,10 m² à 11,80 m², faciles à aménager selon vos besoins.

La maison dispose de deux salles d’eau et de deux WC, un vrai plus pour le confort et la fluidité au quotidien.

À l’extérieur, vous bénéficiez d’une surface annexe d’environ 50 m², comprenant des espaces de rangement, une terrasse pour profiter des beaux jours, ainsi qu’un jardin privatif, parfait pour les moments de détente.

Côté prestations, rien n’a été laissé au hasard : construction neuve – normes 2020, pompe à chaleur, panneaux solaires avec autoconsommation, et garanties décennale et dommages-ouvrage pour une sérénité totale.

S’ajoutent une place de stationnement, un local à vélos, et des frais de notaire réduits (2,5 à 3 %). Le bien est éligible au Prêt à Taux Zéro, à la loi Pinel, au PSLA (location-accession) et à la location meublée.

Une maison neuve, fonctionnelle et bien située, au centre de Saint-Hilaire de Loulay, venez vister avec la Team ATP Immobilier !! 

Caractéristiques de ce bien

  • Surface 85 m²
  • carrez 85 m²
  • séjour 34 m²
  • 3 chambre(s)
  • 2 salle(s) d'eau
  • construit en 2026
  • cuisine
  • Chauffage individuel : radiateur (pompe à chaleur)
  • 1 niveau(x)
  • terrasse
  • accès handicapé

Diagnostics énergétiques

Consommation énergétique
A B C D E F G
Emission de gaz à effet de serre
A B C D E F G
DPE en cours

Informations financières

Prix de vente honoraires TTC inclus 267 500 €

Calcul des mensualités

* Champs obligatoires