Valentin Recoquillon Négociateur
Télécharger la fiche

Appartement 3 pièce(s) 2 chambre(s) 63 m²

Montaigu-Vendée (85600)
243 500 € Référence APTPALOU2

A propos de ce bien

 

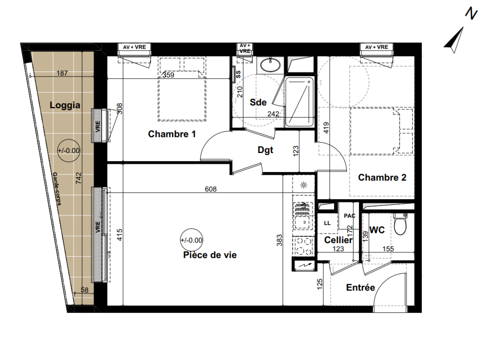
En exclusivité chez ATP Immobilier, découvrez cet appartement neuf de 63 m² habitables, pensé pour conjuguer confort, espace et performance.

La pièce de vie s’ouvre sur un bel espace convivial, idéal pour le quotidien comme pour recevoir.

Côté nuit, deux chambres de 11,90 m² chacune offrent de vraies surfaces, faciles à aménager, que ce soit pour une famille, un couple ou un projet d’investissement.

Pour compléter l’ensemble, une loggia de 10 m² prolonge agréablement l’espace de vie.

Ici, tout est fait pour vivre sereinement : construction neuve norme 2020, pompe à chaleur, panneaux solaires avec autoconsommation, et garanties décennale et dommages-ouvrage pour une tranquillité totale.

L’appartement dispose également d’une place de parking, d’un local à vélos, et bénéficie de frais de notaire réduits (2,5 à 3 %).

Côté opportunités, le bien est éligible au Prêt à Taux Zéro, à la loi Pinel, au PSLA (location-accession) ainsi qu’à la location meublée.

Un appartement neuf, bien situé, intelligent à financer et agréable à vivre, au cœur de Saint-Hilaire de Loulay. A visiter avec la Team ATP 

Caractéristiques de ce bien

  • Surface 63 m²
  • carrez 63 m²
  • séjour 25 m²
  • 2 chambre(s)
  • 1 salle(s) d'eau
  • construit en 2026
  • cuisine
  • Chauffage individuel : radiateur (pompe à chaleur)
  • 1 parking(s)
  • 2 niveau(x)
  • 2ème étage
  • 2 étage(s)
  • ascenseur
  • balcon
  • accès handicapé

Diagnostics énergétiques

Consommation énergétique
A B C D E F G
Emission de gaz à effet de serre
A B C D E F G
DPE en cours

Informations financières

Prix de vente honoraires TTC inclus 243 500 €

Calcul des mensualités

* Champs obligatoires