Valentin Recoquillon Négociateur
Télécharger la fiche

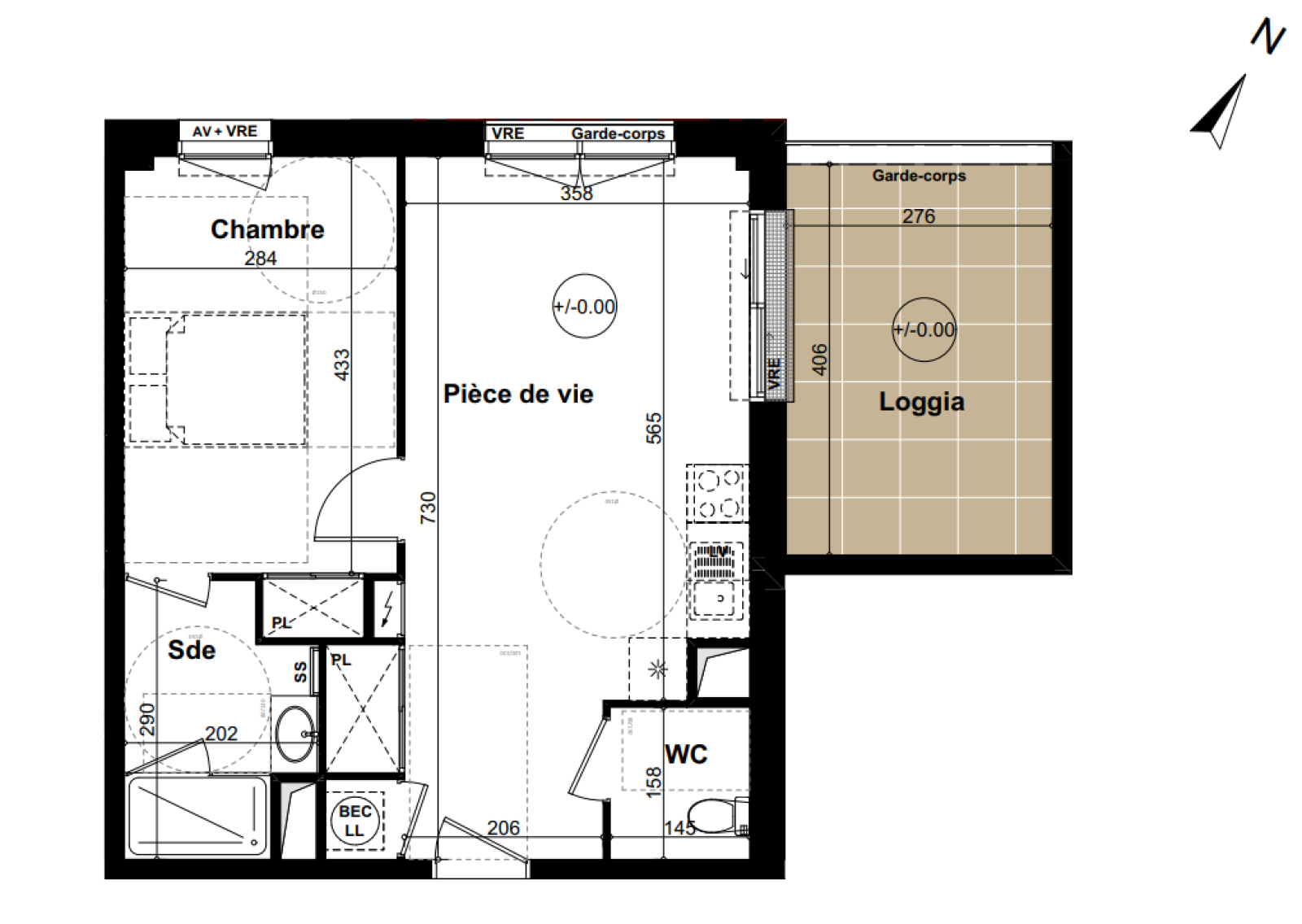
Appartement 2 pièce(s) 1 chambre(s) 45.3 m²

Montaigu-Vendée (85600)
176 000 € Référence APTPALOU

A propos de ce bien

Bienvenue à Saint-Hilaire, où cet appartement neuf de 46 m², proposé en exclusivité chez ATP Immobilier, coche toutes les cases.

Dès l’entrée, vous découvrez une pièce de vie généreuse de 25 m², parfaite pour recevoir, travailler ou simplement profiter.

La chambre de 13 m², rare pour cette typologie, offre un vrai confort au quotidien.

Et pour prolonger l’espace, une loggia de 11 m² vous attend, idéale pour les beaux jours.

Côté prestations, on est sur du neuf norme 2020 : pompe à chaleur, panneaux solaires avec autoconsommation, performances énergétiques au top et tranquillité d’esprit assurée grâce aux garanties décennale et dommages-ouvrage.

Ajoutez à cela une place de parking, un local à vélos, des frais de notaire réduits (2,5 à 3 %) et un emplacement ultra central, et vous obtenez un bien aussi agréable à vivre qu’intelligent à financer.

Bonus non négligeables : éligible Prêt à Taux Zéro, loi Pinel, PSLA (location-accession) et location meublée.

Un appartement pensé pour aujourd’hui, prêt pour demain.

À découvrir sans tarder avec  la Team ATP

Caractéristiques de ce bien

  • Surface 45,30 m²
  • carrez 45,30 m²
  • séjour 25 m²
  • 1 chambre(s)
  • 1 salle(s) d'eau
  • construit en 2026
  • cuisine
  • Chauffage individuel : radiateur (pompe à chaleur)
  • 1 parking(s)
  • 2 niveau(x)
  • 2ème étage
  • 2 étage(s)
  • ascenseur
  • accès handicapé

Diagnostics énergétiques

Consommation énergétique
A B C D E F G
Emission de gaz à effet de serre
A B C D E F G
DPE en cours

Informations financières

Prix de vente honoraires TTC inclus 176 000 €

Calcul des mensualités

* Champs obligatoires